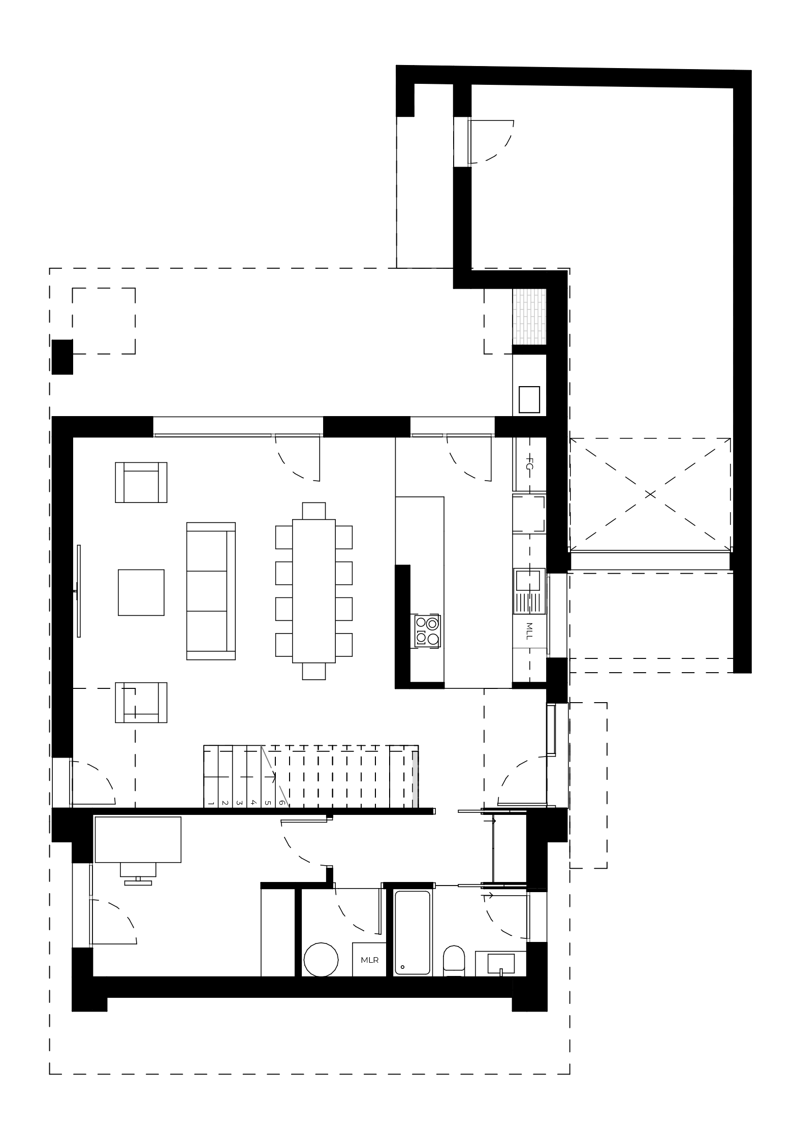
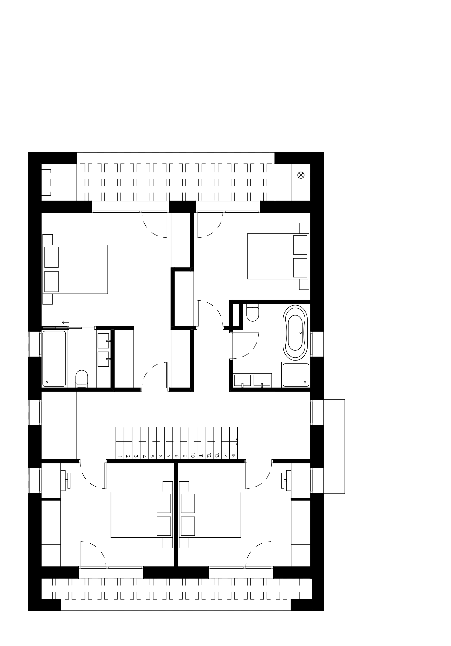
Arq_395 Qta. São João da Sobreda LT84

2

pisos

±89

área implantação

±185

área construção

±367

área lote

Construção de Moradia Unifamiliar, Garagem, Piscina e Muros

Comunicação Prévia

Área do Anexo 36,62 m²

Área total construção (habitação + anexo) 222,10 m²

Cércea 6,50 m

Área da Piscina 18 m² / 21 m³

Fase: Construção