Arq_104 QTA. DA ESTRELA, CAPARICA

3

pisos

±255

área implantação

±87

área construção

±320

área lote

Construção de Moradia Unifamiliar com 2 pisos mais cave e Piscina

Comunicação Prévia

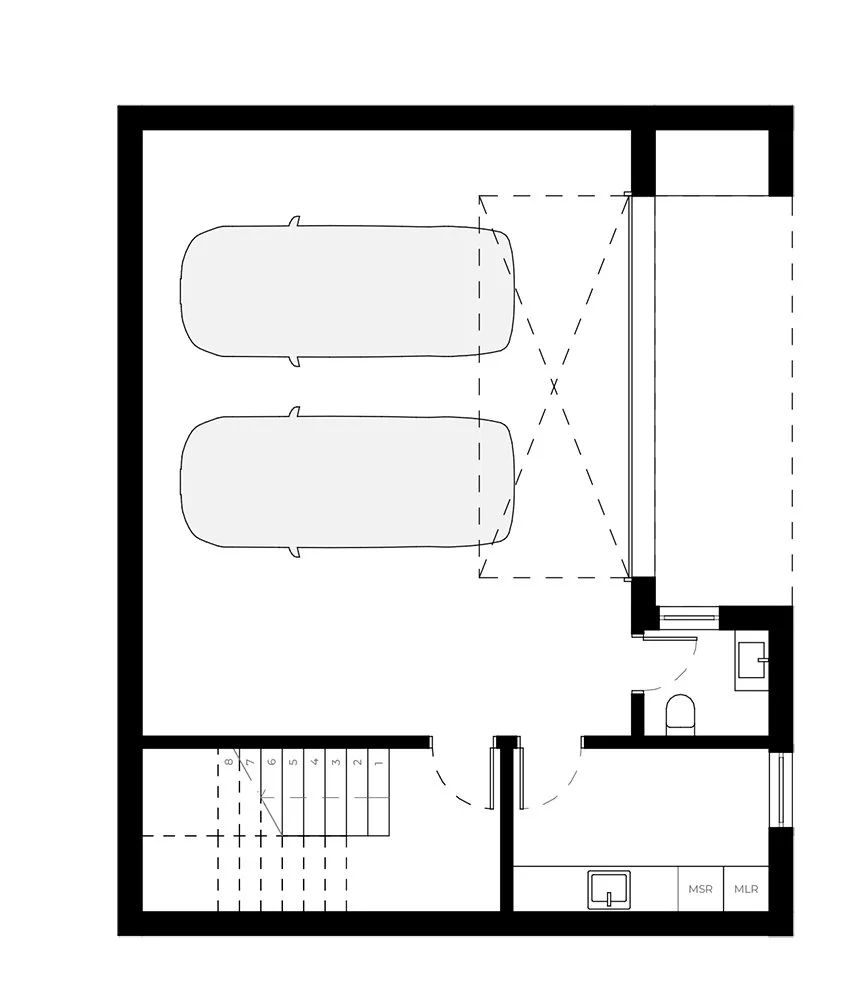
Área da Cave 83,91 m²

Área de Habitação 170,83 m²

Cércea 6,40 m

Área da Piscina 12,88 m²

Fase - Construído

Outros Projetos